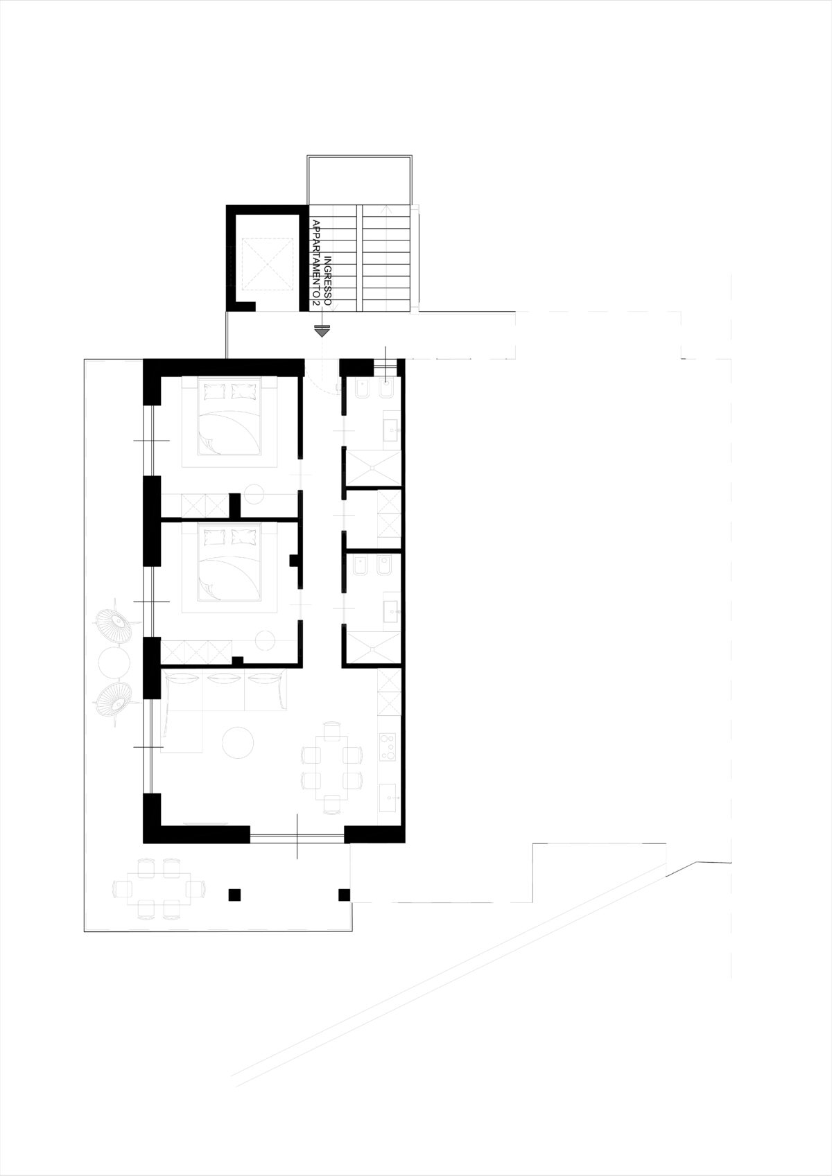
VILLA GHIRETTI ampio trilocale con grande terrazzo vista mare APP.TO N.2

590.000€
Lot Area: 97 Mq Floor Area: 87 Mq Camere da letto: 2 Bathrooms: 2 Garage / Posto Auto: opz Year Built: 2026 Soggiorno: soggiorno living con angolo cottura Cucina: angolo cottura

Appartamento trilocale al primo piano con terrazzini vivibili VISTA MARE.
Primo piano con ascensore, quindi senza barriere architettoniche, luminoso, ben esposto e con una ampia e vivibile terrazza da cui si gode di una favolosa VISTA MARE.
Internamente composto da ingresso su corridoio, soggiorno con angolo cottura, due camere da letto e bagno completo.
Dal soggiorno si accede ai due comodi terrazzini dove è possibile pranzare e cenare all’aperto.
Soluzione personalizzabile.
Disponibilità di posti auto e box.

https://storage.net-fs.com/hosting/6930432/19/

Classe Energetica: A+ < 14 kWh/m2

Richiedi informazioni